SKU:Ref. ST1690
Dormitorios:
5
Niveles:
3
m²:
3370.0/18220.0
Baños:
4
Año de Construcción:
S/I
HOUSE & HOUSE Vende:
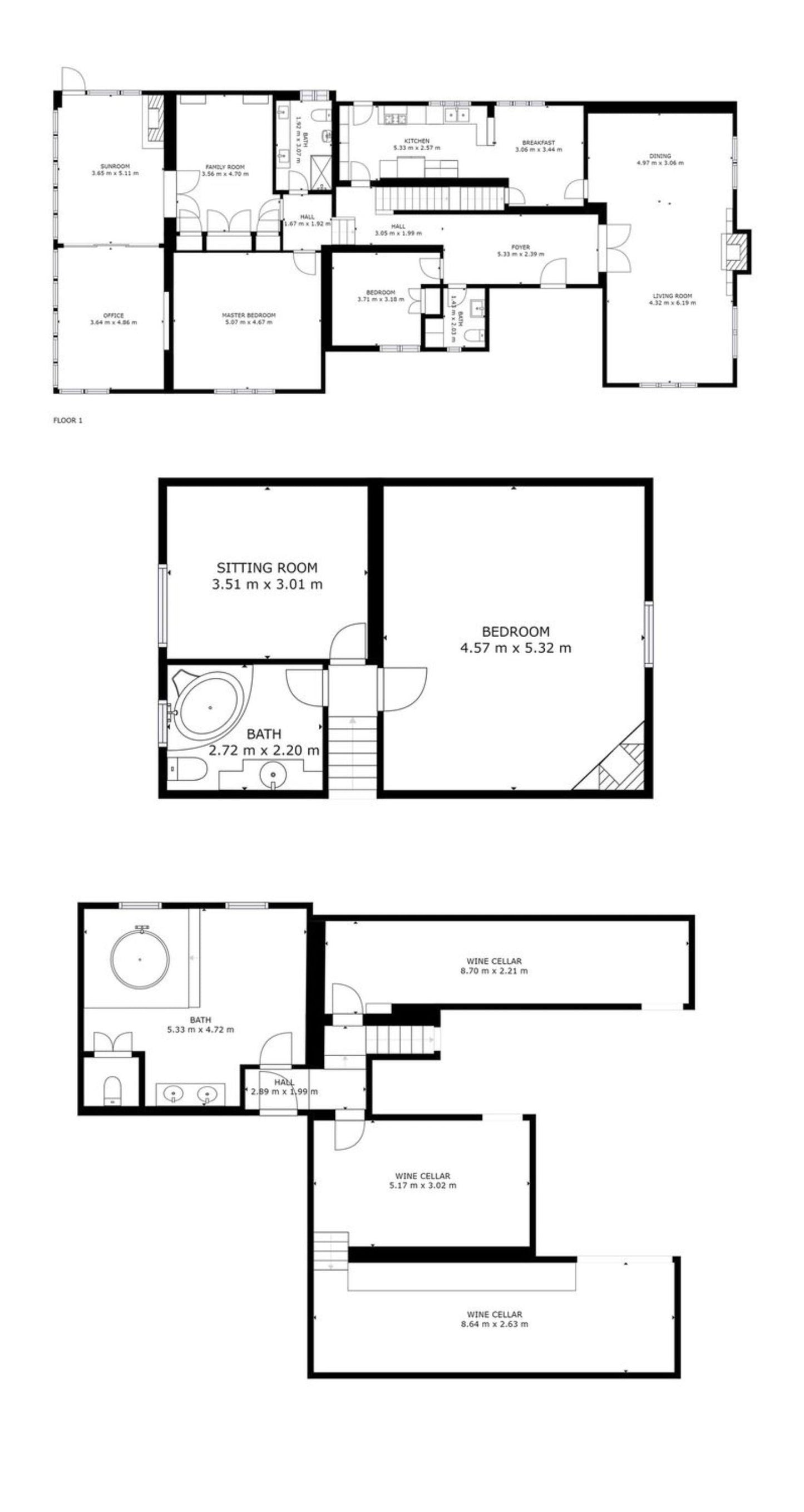
La casa se distribuye:
PLANTA PRINCIPAL: Hall/distribuidor, amplio salón comedor con bonita chimenea comunicado con la cocina con zona de office, aseo de invitados, dormitorio de servicio y/o invitados, dormitorio principal muy amplio con gran frente de armarios y baño completo ( este último reformado el año pasado), en esta misma planta tenemos u segundo salón o cuarto de estar con chimenea y otro despacho.
PLANTA PRIMERA: Dos dormitorios y un baño completo. Uno de los dormitorios es de gran tamaño. y ambos tienen armarios empotrados.
PLANTA BAJA: Espectaculares bodegas, zona de spa ( con jacuzzi) cuarto de juegos y garaje para dos coches. Bonito jardín con vistas a la urbanización, piscina con zona de merenderos, barbacoa, dos trasteros o cuartos de almacenaje, cuarto de instalaciones y leñero.
MEJOR VER! La vivienda está ubicada dentro de una urbanización, situada en el kilometro 28 de la N-I, dispone de seguridad privada las 24h del día, como servicios comunes dentro de la urbanización cabe destacar: El club social del RACE, con un campo de golf de 18 hoyos, hípica, piscina, tenis, padel, futbol, gimnasio etc... Además de dos edificios sociales uno de adultos y uno de niños, con zona de ocio, piscina de bolas y unos grandes jardines con columpios y mesas de picnic ideales para celebrar fiestas infantiles. Colegio privado bilingüe SEK, en la urbanización de enfrente (Santo Domingo) hay un colegio público bilingüe con primaria y secundaria y a 5 min por la vía de servicio en dirección Madrid se encuentra también el Trinity College colegio concertado bilingüe.
La urbanización tiene una línea de autobús que van a Plaza de Castilla y hacen paradas intermedias en el metro de San Sebastián de los Reyes, junto al Hospital Publico Infanta Sofía. Ciudalcampo dispone además de una línea de minibuses internos que recorren toda la urbanización.
A 10 min, encontramos el Hospital público de la Seguridad Social Infanta Sofía, construido recientemente y con todas las especialidades.
